全案定制 · 大宅家装
个性化定制 · 生活不将就
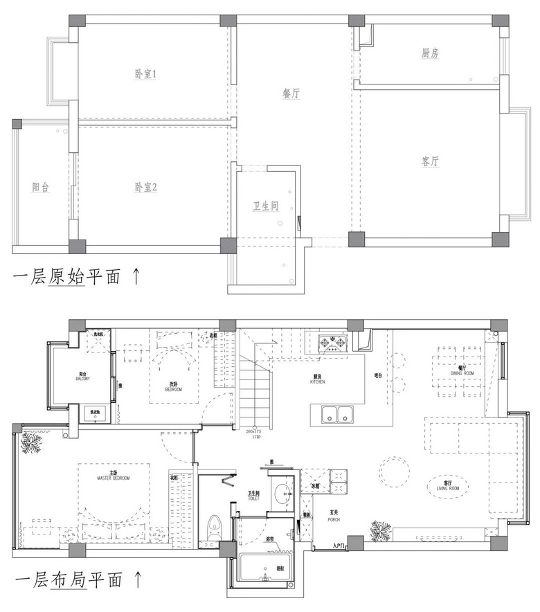
说起阁楼,脑海里浮现的就是狭小闷热,缺点多多。但是在设计师眼中,一旦合理利用这些“缺点”,就能得到意想不到的效果,让阁楼变身功能区。
拥有一套带阁楼的房子是不少人的梦想,
但带阁楼的顶层房子因空间分布高矮不一,
往往会形成空间死角,
本案就遇到这样一套奇葩户型,
而建筑学出身的设计师在本案中,
把建筑美学和设计美学进行融合,
对住宅进行结构重塑、化繁为简,
打造出“无界”住宅。
实用面积:83+22=105㎡
装修服务电话申请: 400-800-6270
个性化定制 · 生活不将就
温润木色搭配白色墙体贯穿整个装修设计,入户玄关傍晚黄昏一开门那一抹温柔瞬间吹散了整天的工作疲劳,今日份的幸福感在心头环绕,慵懒却又轻快。原主卧房门的改动增加玄关区域的仪式感,餐厅区域的采光及舒适度都有了很大的提升。邻近天地壮阔,厚载心境盛境,格局是横亘于人群中幽静的分野。客厅电视背景的2:8的整体电视柜让居住收纳得到完美体现, 通过不同层次的木色搭配鸦青与灰色的沙发,小小的一撮绿植增添生机。整套空...

*为了您的利益以及我们的口碑,您的隐私将严格保密

数据预算由红月亮装饰历史交付10万+业主装修数据
各个小区的签单合同数据经过大数据实时分析计算